🌅 Квартира з панорамою на Південний Буг: Ваша ідеальна 2к у ЖК Avila Land! (№ 213-276-423)
Ціна: 50 000 $

Адреса: Миколи Мазура, Хмельницький, Хмельницька, Виставка
Характеристики
| Ціна: | 50 000 $ |
|---|---|
| № об'єкта: | 213-276-423 |
| Кімнат: | 2 розд |
| Поверх: | 9 / 10 ліфт |
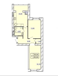
| Площа: | 61 / - / 16 м2 |
| Санвузол: | сумісний |
| Балкон: | лоджія |
| Тип Обєкта: | НБ-не здана |
| Стан обєкту: | Стан від будівельників |
| Іпотека: | - |
| Державні програми.: | - |
| Додатково: | новобудова |
Опис
🌅 Квартира з панорамою на Південний Буг: Ваша ідеальна 2к у ЖК Avila Land!
Мрієте про ранки з виглядом на річку та парк, не виходячи з власної вітальні? Пропонується до продажу простора двокімнатна квартира в одному з найперспективніших комплексів району Виставка — ЖК Avila Land.
Це житло для тих, хто цінує комфорт сучасного будівництва та естетику міських краєвидів.
📐 Простір та планування (61 м²)
Квартира спроектована для максимальної зручності:
Дві окремі кімнати: Простір для відпочинку та прийому гостей.
Гардеробна кімната: Окреме приміщення для речей, що дозволяє звільнити житлову площу від зайвих шаф.
Над вами — повноцінний 10-й технічний поверх, що гарантує тишу та відсутність сусідів зверху.
Не кутова: Квартира розташована в середині будинку, тому буде дуже теплою та енергоефективною.
🛠 Стан та наповнення (після будівельників)
Забудовник виконав основну частину брудних робіт, щоб ви могли одразу розпочати дизайн-проєкт:
Встановлено двоконтурний газовий котел (індивідуальне опалення).
Виконана якісна штукатурка стін та базова розводка електрики.
Встановлено надійні вхідні двері та всі лічильники (газ, вода, світло).
Естетика під'їзду: Дизайнерський ремонт місць загального користування з використанням декоративної штукатурки.
📍 Локація — все під рукою
Район Виставка славиться своєю інфраструктурою. Поруч із ЖК Avila Land є все для активного життя
💰 Інвестиційна вигода
Здача будинку: ІІ квартал 2026 року — ідеальний час для купіві, щоб встигнути зробити ремонт до осені!
Діє переуступка: Ви стаєте першим власником квартири, мінімізуючи витрати на оформлення документів.
Не втрачайте можливість придбати житло з найкращим краєвидом у місті!
📞 Телефонуйте вже зараз, щоб дізнатися деталі та зарезервувати огляд










